Infinity 23-25

Residential | 2023 | Berdorf, LU

The project is situated in the serene locale of Berdorf, Luxembourg, recognized as the “Little Switzerland” within the country. 
This endeavor stands as an opportunity for ODA to showcase its interpretation of contemporary architecture through thoughtful considerations of form, function, and materials.
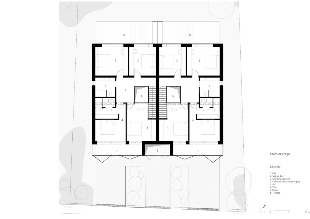
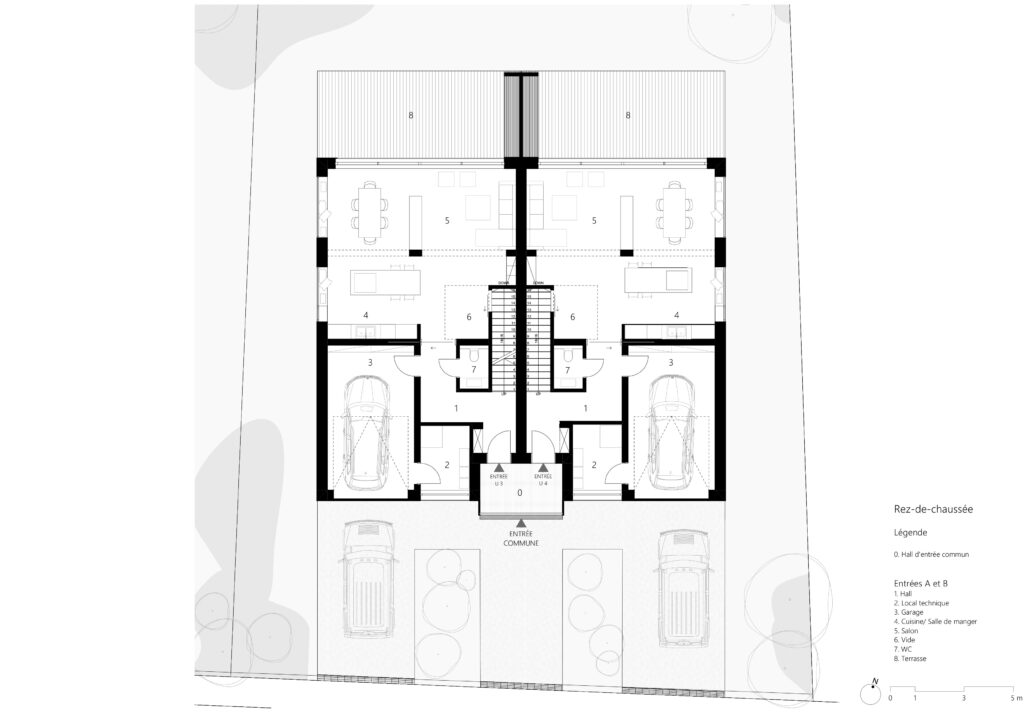
 Comprising two semi-detached houses totaling four units, the plot features identical structures in function and form while presenting similarities in their façades. Each unit spans two floors, encompassing a ground floor and a first floor. The design prioritizes the segregation of living areas from private or quieter spaces.
 Emphasizing privacy as a primary objective, the project meticulously addresses exterior elements in addition to interior zoning. Commencing with a communal entrance that serves the dual purpose of fostering a sense of community and ensuring privacy, the design incorporates wooden panels to provide seclusion within the open space. Furthermore, the terraces are configured to offer privacy without compromising the appreciation of the surrounding natural beauty.
Functionally, each unit serves as a residence, encompassing the essential spaces inherent to a typical household. Departing from conventional rectangular volumes, the roof extends in height on specific sides, contributing to a more fluid façade. This design choice aims to enhance the buildings’ presence, setting them apart within the neighborhood and establishing a new benchmark for contemporary design in Luxembourg.
 Another distinctive feature of the project is the utilization of wooden panels on the façade, contributing not only to the fluidity of the exterior but also to its sustainability. These panels serve to regulate the ingress of sunlight into the units, allowing for an interplay of light and shadow within the spaces.

Location

Berdorf, LU

 

Typology

Twin House

 

Client

Private

 

Size ( Bruto )

472  per House

 

Year

2023

 

Project Team

ODA Architects

 

Status

Complete

 

Scroll to Top